収納で失敗しない家づくり!
“収納率”という言葉を耳にしたことはありますか?知ってるよ、という方も初めて聞いたという方もいらっしゃると思いますが、今回は住宅の収納計画についてポイントをご紹介していきたいと思います。
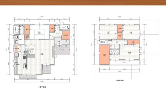
では、収納率とは何か…収納率とは、家の床面積に対する収納スペースの割合のことをいいます。式で表すと、「収納面積÷総床面積×100」で表し、一般的に戸建て住宅なら12~15%、マンションなら8%ぐらいが理想とされています。では実際の間取りで、収納率を算出してみたいと思います。

こちらの戸建て住宅の延べ床面積は120.06㎡(バルコニーを除く)、
収納床面積(オレンジ色部分)が17.43㎡。
つまり、収納率は17.43÷120.06×100≒14.5%となり、面積的には充分な収納が確保されていると判断できます。
しかし、収納率が高いからと言って、一概に収納しやすい家とは言えません。収納率を確保すると同時にどういう点に気を付けて住まいの間取りを考えていけば良いのか、具体的にみていきましょう。
1.家族構成による収納計画
大きな要因になるのが家族構成です。何人家族か? 家族の年齢は? 家族それぞれの趣味は? 生活スタイルは? 季節物家電の量は?(これはお住まいになる地域にも関係してきます) 衣類や趣味の品がたくさんある方や、反対に物が少ない方、それらを総合的に分析して、どれくらいの収納量があれば良いかを考えます。たちまち収納スペースの絶対量はこれで確保されますね。
2.適材適所に収納計画
注文住宅で間取りを考える際、多くの方が「収納スペースがたっぷり欲しい」とご希望されます。物があふれかえる家は嫌ですから、出来るだけ収納スペースに収めて、スッキリ生活したいですよね。そこで、次に大事になるのが、適材適所に最適な大きさの収納スペースを計画することです。パブリックスペースとプライベート空間、水回り空間では、求められる収納の用途が違います。それぞれの空間で必要な収納量・収納方法を検討しましょう。
私の個人的なおススメは、住まいのどこかに大型収納を1カ所設けることです。上記の間取りでは2階に4畳の納戸があります。大型収納には、1年に一度くらいしか使わないクリスマスツリーやひな壇・兜の他、冷暖房機器、子どもが作った作品などを収納します。お手持ちの和箪笥や洋箪笥をおさめることもできますし、パイプハンガーを設置して、直接衣類を収納することもできます。大型収納を玄関に隣接させて、土間収納として計画するのも良いですね。大型収納はとても利便性が高いと思います。

■大型土間収納■
自転車やベビーカーも楽々収納できます。雨の日も安心ですね。

■リビング収納(棚)■
リビングはこまごましたものが散らかりやすい空間になりがちです。写真のように一角のスペースに収納棚があるだけで、整理整頓ができ、パブリックスペースが落ち着きのあるスッキリとした空間になります。

■リビング収納(階段下)■
こちらはリビング階段の階段下スペースを上手に利用した階段下収納棚です。子供の作品を飾るなど使い勝手は自由自在ですね。

■洗面所収納■
実はここは、かなりの収納が欲しい空間です。今までの日本の住宅は、洗面所を1坪で計画することが多くありました。1坪では正直収納スペースは充分に確保できません。できれば、1.5坪は欲しいですね。洗面所で収納スペースを確保することで、家事が効率的にでき、時短家事にもつながります。
3.動線を考えた収納計画
住まいを設計する際、ご自身が、どういう住まい方をするのか、ぜひイメージをしてみてください。これが実際にお引渡し後に入居されて、ストレスを感じないためにとても大事なポイントです。おひとりおひとり生活のスタイルが違います。朝洗濯される方もいれば、夜派の方もいます。一日の生活をイメージし、ご自身の生活スタイルで、どこにどれだけの収納があれば、より効率良く、ストレスフリーで過ごせるのか、ここはじっくり検討してみることをお勧めします。

■キッチンからパントリーへの動線収納■
キッチンの直ぐ横にパントリー収納を計画しました。家電製品や食品のストックなどが十分に収納できます。動線もシンプルです。
4.予算も考えた収納計画
最初に収納率の理想パーセンテージをお伝えしました。戸建て住宅は12~15%です。が、ここで考えないといけないのは、ご予算です。上記の間取りで収納床面積が14.73㎡。つまり坪に換算すると約4.4坪。単純に坪単価80万で考えると、収納空間に352万かかるということです。収納はたっぷり欲しいけれど、大きな金額がかかってしまいます…。
まずはマイホームを考えるこの機会に物を一度整理することも必要かもしれませんね。
収納スペースは決して面積だけではありません。適材適所に、家族の生活スタイルに合った収納が何よりも大切だと思います。私たちホルツバウハウスでは、設計士が窓口となり、収納も含めお客様のご要望をお聞きし、より豊かな暮らしになるよう最善を尽くして提案させていただきます。ご不明な点は、どうぞお気軽にご相談下さい。
スタッフ一同でお待ちしています!
設計士 高垣順美
広島県広島市中区大手町2-5-11 はるぜんグランリーブ8F
ホルツバウハウス
TEL:082-243-7622
info@jdknet.co.jp